스위치, 램프의 A접점, B접점 의미와 회로도의 적용 예시
1. A접점, B접점 의미
회로에서 스위치, 램프는 A접점 그리고 B접점에 의해 동작을 합니다.
1) A접점 (NO = Normally Open)
- Normal 상태에서 Open (Off)
- 신호를 받으면 Close (On) 되고, 신호가 끊기면 Open (Off)으로 복귀가 됩니다.
- 신호를 받아서 Close (On) 된 상태에서 자기유지 회로가 유지되어 신호가 계속 주게 된다면
Close (On) 상태가 유지가 되며, 자기유지 회로가 끊기게 되면 Open (Off)으로 복귀가 됩니다.
2) B접점 (NC = Normally Closed)
- Normal 상태에서 Close (On)
- 신호를 받으면 Open (Off)
- 신호를 받으면 Open (Off) 되고, 신호가 끊기면 Close (On) 으로 복귀가 됩니다.
- 신호를 받아서 Open (Off) 된 상태에서 자기유지 회로가 유지되어 신호가 계속 주게 된다면
Open (Off) 상태가 유지가 되며, 자기유지 회로가 끊기게 되면 Close (On)으로 복귀가 됩니다.
2. A접점, B접점 Symbol
Vendor 마다 Symbol이 약간씩 다를 수 있습니다.

3. 회로도에 적용
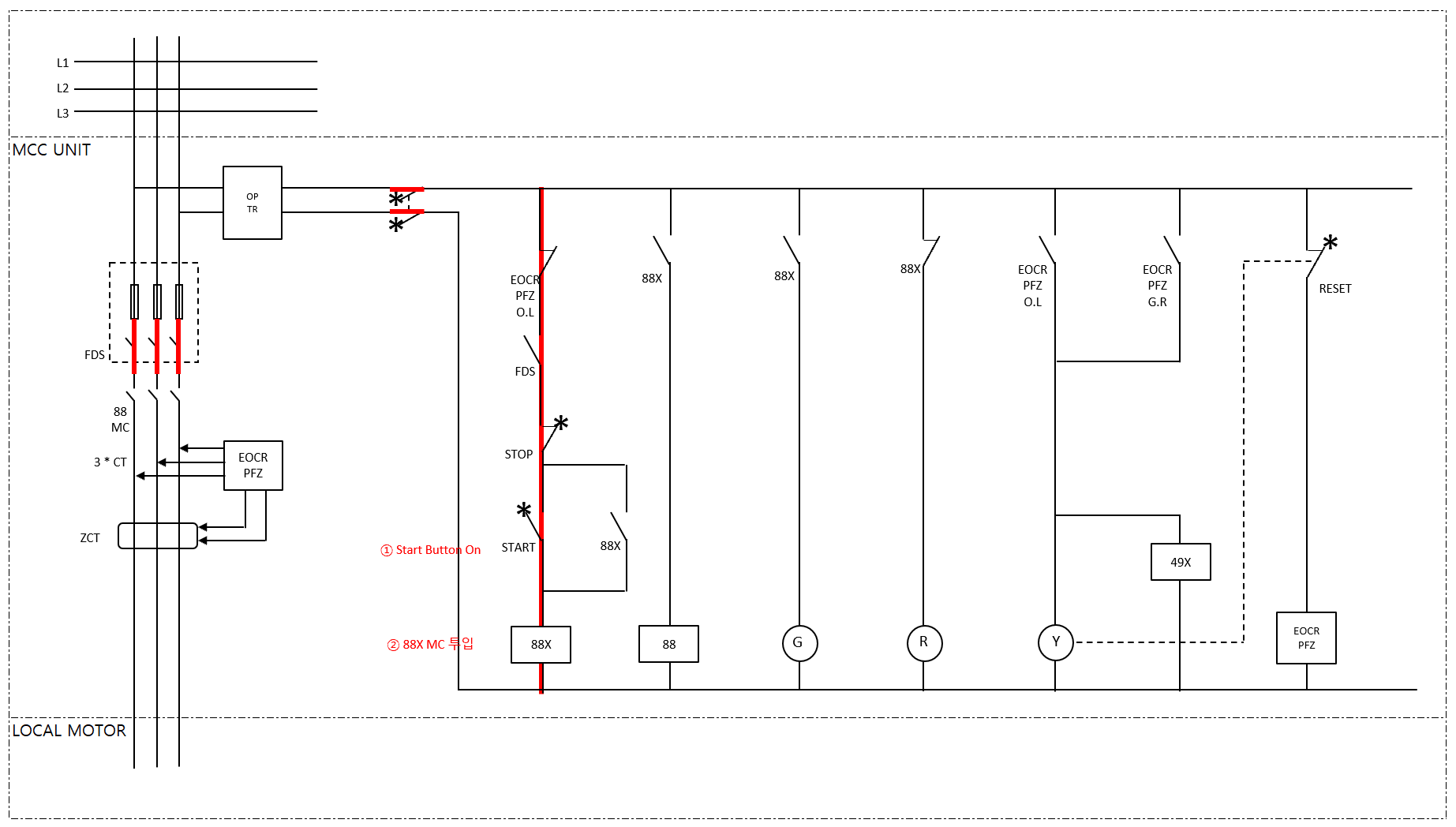
1) 적용 예시 - 1
- ① FDS Fuse 투입 → ② OP TR 2차측 차단기 On
- ③ 88X B접점이라서 Normal Close (On) 이 되므로 ④ Red Lamp는 On이 됩니다.

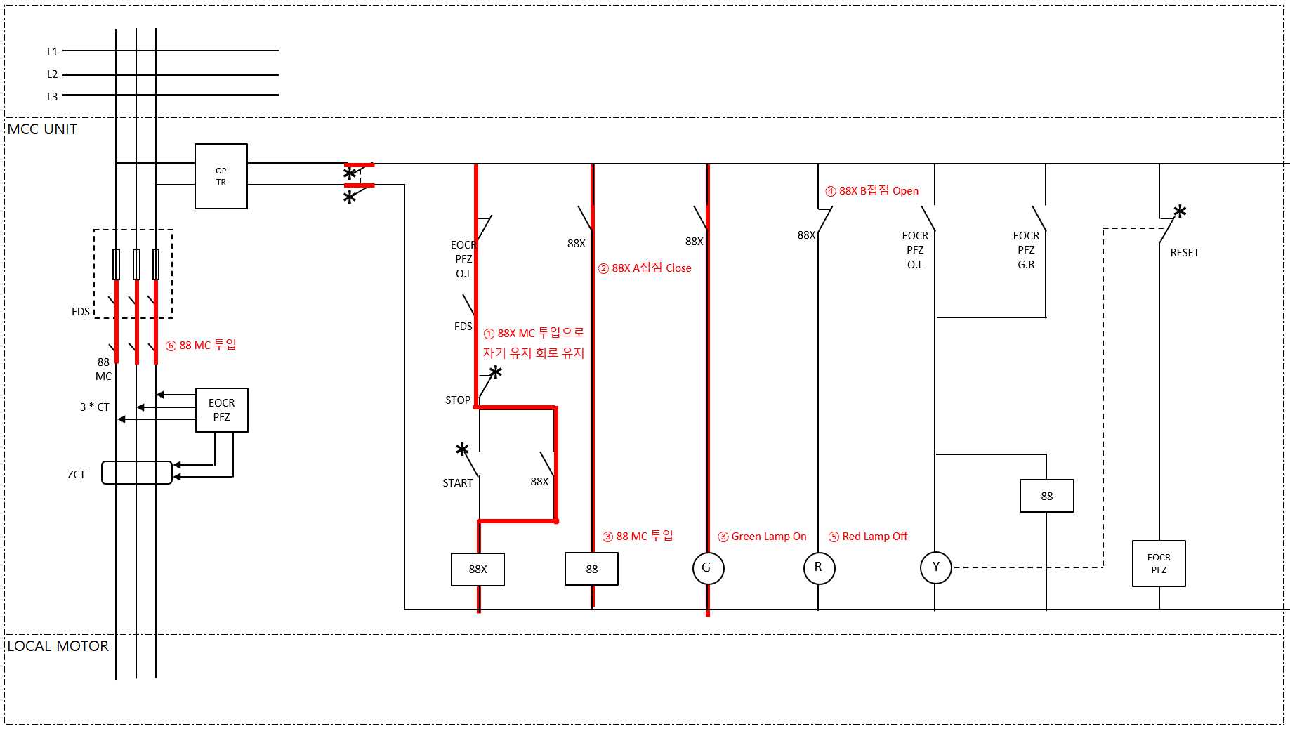
2) 적용 예시 - 2
- ① Start Button On하게 되면, ② 88X MC 투입

- 88X 투입 신호를 받아 ① 88X B접점 동작하게 되어 자기 유지 회로가 유지됨
- ② 88X B접점은 88X 투입신호를 받고 Close → Open 됨
- 이로 인해 ③ 88MC 투입 → ⑥ 88 MC 투입됨 & Green Lamp On
- 88X 투입 신호로 인해 ④ 88X B접점은 Open → Close가 되고 ⑤ Red Lamp Off 됨

'전기, 계장 직무' 카테고리의 다른 글
| 효율적이고 안전한 건물 전기 설비 꿀팁 (0) | 2024.07.26 |
|---|---|
| 보조계전기의 3a1b 이해 (0) | 2024.07.26 |
| 전기 기자재 설치 사진 (C-CHANNEL, ANGLE, PLATE, CONDUIT PIPE 등) (0) | 2024.05.28 |
| 가승인품의서와 승인품의서의 차이 (0) | 2024.03.14 |
| SADDLE, C-TYPE HANGER and CLIP / Conduit Pipe 고정 Fitting류 (1) | 2024.02.24 |